
15 Holcomb Walnut Creek, CA 94596
0.52 Acres Lot
UPDATED:
Key Details
Property Type Vacant Land
Listing Status Active
Purchase Type For Sale
Subdivision None Now
MLS Listing ID OC25257014
HOA Y/N No
Lot Size 0.520 Acres
Lot Dimensions Public Records
Property Description
Location
State CA
County Contra Costa
Area 699 - Not Defined
Zoning units
Interior
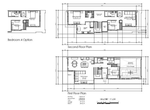
Inclusions all existing preliminary building plans of the project.
Fireplace No
Exterior
Fence None
Community Features Suburban
Utilities Available Cable Available, Electricity Available, Natural Gas Available, Phone Available, Sewer Available, Water Available
View Y/N Yes
View City Lights, Panoramic, Valley
Present Use Unimproved
Building
Lot Description 6-10 Units/Acre, Bluff
Sewer Public Sewer
New Construction No
Others
HOA Name none now
Senior Community No
Tax ID 1832700064
Acceptable Financing Cash, Cash to New Loan
Listing Terms Cash, Cash to New Loan
Special Listing Condition Standard







